TEL:04-23503355 / FAX:04-23502255
繁中
简中
EN
首頁
認識典雅
關於典雅
專業認證
主要業務介紹
鋁的特性
專屬烤漆場
鋁合金碳竹資材系列目錄
工程案例
鋁合金現代資材系列
鋁合金仿竹資材系列
鋁合金仿木資材系列
雕塑品系列
碳化竹木資材系列
共融式遊具
特殊專案
線上視頻
聯絡我們
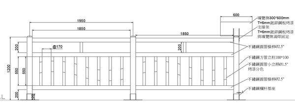
DN-409 大湖鄉靜湖社區友善通學廊道營造工程
Home
鋁合金現代資材系列
N. 欄杆及格柵 DN-409 大湖鄉靜湖社區友善通學廊道營造工程
回上頁